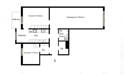
På Framnäsbacken 3 finns det lägenheter med 3 rum och kök. Ursprungsplanlösningen är
- Ett kök med matplats, med utgång till en balkong. Balkongen vetter mot gatan och har österläge med morgon-förmiddagssol.
- Ett stort vardagsrum om ca 30 kvm med glasade dubbeldörrar mot hallen och anslutning mot det större sovrummet. Vardagsrummet har utsikt mot den grönskande baksidan av huset.
- Sovrum 1, på 16 kvm inkl garderober,
- Sovrum 2, om ca 11 kvm inkl. garderob.
- En helkaklad toalett med dusch/bad/tvätt i anslutning till hallen.
- En klädkammare, i anslutning till hallen.
- Det är genomgående ekparkett i alla rum utom i köket där det är linoleum-matta.
- Fönstren är stora och ger ett fint ljusinsläpp i alla rum.
